1)在現有建筑幕墻防火封堵的構造設計中,在無外墻外保溫系統的玻璃幕墻中,通常在樓層間采用一道防火封堵的構造設計,如圖2、圖3、圖4、圖5。

圖2為現有最常見的玻璃幕墻層間防火封堵構造,其防火封堵構造從原理上分析,應符合現有設計規范的規定。但應注意層間幕墻面板材料應具有滿足建筑防火設計要求的燃燒性能及耐火極限,以防下層火焰產生卷火致使幕墻面板燃燒或炸裂時,煙氣和熱量直接竄到上一層樓內,造成人員傷亡和損失。
采用圖3的防火封堵構造,使得幕墻層間防火封堵構造較遠離開火焰燃燒點,有利于提高層間防火層的耐火性能。但應注意防火構造的分區隔離處已不同于圖2的位置,幕墻的層間防火封堵層已處在樓面處。因而層間防火封堵層以下的結構梁高度不應計入有效的防火封堵高度,防火封堵的有效高度應從層間防火封堵構造層算起。按照現有規范的規定,應在樓面以上設置不小于800mm高的不燃性實心墻或防火玻璃墻。

圖4是將幕墻層間防火封堵移至建筑構造樑的中間并與幕墻的保溫層相連接。當幕墻保溫層內側僅為鋁箔時,此種封堵實質是無效的。除了鋁箔在高溫下瞬間就融化外,采用巖棉的保溫系統,當通道內的溫度達到9000C后,同樣也會產生碳化燃燒。
采用圖5中上下兩層防火封堵構造的設計在現有的工程中應用較少,目前實施的規范也暫時沒有相關的規定,其造價相對較高。但從結構的合理性和防火性能的必要性,比較其它的幾種形式應是相對更為可靠。當層間防火隔離層的高度足夠高時,可有效的阻斷火焰向上的蔓延。

2)在金屬、石材、人造板幕墻的防火構造設計中,幕墻尚未有相關的規范對其層間的防火封堵構造設計提出要求。原有的此類幕墻,在層間基本沒有設置層間防火封堵構造。當此類幕墻起火時,通道內從下自上的強烈煙囪效應(詞條“煙囪效應”由行業大百科提供),極大的推動了火焰的迅速蔓延。特別是在幕墻式建筑的情況下,危害更加重大。圖6為鋁板幕墻遭受火災后,鋼支承構件已嚴重變形(詞條“變形”由行業大百科提供)。
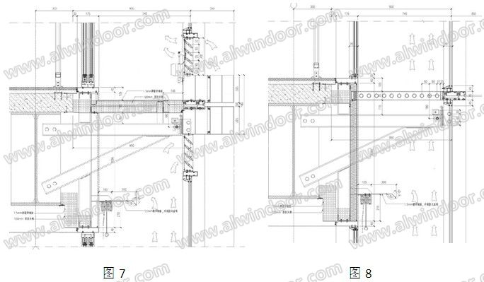
3)雙層幕墻的防火封堵設計,在現行的技術規范中尚未有相關的規定,在具體執行中存在較多的爭議。圖7、圖8為目前較為普遍的雙層幕墻防火封堵設計。圖7為具有層間防火封堵設計,圖8為多樓層為一個熱通道的過樓層防火封堵和挑檐設計。

3.2改善幕墻防火封堵構造設計的研究
針對現有常見建筑幕墻防火封堵構造中存在的問題,以及幕墻式建筑在火災狀態下的燃燒特點,為改善和提高建筑及建筑幕墻的防火能力,有必要對建筑幕墻的防火封堵構造設計進行探討和研究。
1)常用的玻璃幕墻層間防火封堵構造,根據修編中的102規范提出的規定,建議采用圖5中上下兩層防火封堵構造。為了提高防火封堵構造的隔煙性能,防止防火封堵構造因外力或溫度變化的作用而產生裂縫,可在上層防火封堵構造的表面上覆防火密封漆,增加防火封堵構造的抗變位能力。防火密封漆的工作原理見圖9。對于幕墻間的采光口或門窗洞口,是室內火源向外蔓延的主要突破點,因而幕墻間的采光口或門窗洞口的防火封堵構造設計甚為重要。

2)對建筑幕墻內側具有基層(結構)墻體或具有墻體功能的組合隔層,其幕墻的防火封堵構造是值得進行重點研究的內容。特別是具有外墻外保溫系統的幕墻式建筑,其防火封堵構造設計更是難點。首先對于不帶外墻外保溫系統,或外保溫系統的保溫材料為A級的常規幕墻,如金屬板幕墻、石材幕墻和人造板幕墻,應如何設置幕墻的防火封堵構造,目前存在較大爭議。主要的問題是此類幕墻是否需要在每一樓層間均設置防火封堵構造,如不每層設置封堵,應為幾層為合理。根據在編的相關規范,如GB50016報批稿和《人造板材幕墻工程技術規范》中的規定,建議應根據建筑設計的防火分區,設置相應的層間和垂直的幕墻防火封堵構造,且每一樓層均應設置層間封堵。特別是對于燃燒性能和耐火極限較差的幕墻面板材料,采取這樣的措施對保護幕墻自身和防止火焰蔓延有著積極的作用。對于采用低于A級保溫材料(詞條“A級保溫材料”由行業大百科提供)的幕墻式建筑的幕墻防火封堵構造,經過一些防火試驗,目前尚未有成熟和確實可行的方案。針對不同保溫材料的特性,以及外墻外保溫系統自身具有的防火隔離帶,其與幕墻層間防火封堵大致可組成兩種構造形式。對于熱固性保溫材料,可采用圖10的構造方法,幕墻的防火封堵構造固定于基層墻體上并與幕墻形成有效的連接,構成完整的層間防火封堵構造。對于熱塑性保溫材料,可采用圖11的構造方法,幕墻的防火封堵與外保溫系統的自身防火隔離帶形成丁字型的層間防火封堵構造。但從兩種構造的防火試驗結果表明,都未能成功避免外保溫系統和幕墻遭到焚毀的結果。其主要原因是外保溫系統的防護層在上卷火的作用下,遭到擊穿而引致外保溫系統的保溫材料起火燃燒引起的。從圖1分析中可以知道,外保溫系統保溫材料起火燃燒是導致通道內溫度急劇增加和火焰迅速蔓延,最終使幕墻和外保溫系統完全焚毀的最大因素。所以,在設計幕墻式建筑防火封堵構造時,宜從層間防火封堵的設置、外保溫系統保溫棉防護層、幕墻面板材料的燃燒性能和耐火極限等多方面進行權衡設計。參考圖10的構造,首先要確保層間防火封堵構造的連接可靠性(詞條“可靠性”由行業大百科提供)和密閉性,必要時可考慮將支撐鋼板(詞條“鋼板”由行業大百科提供)更換為傳熱性能差的隔熱材料或其它的構造形式,以降低層間防火封堵層背火面的溫度;其次可在層間防火封堵與基層墻體的墻面上,采用A級保溫材料,其高度宜在1000mm以上,并適當增加此部分的防護層厚度,以提高防護層抵抗火焰的能力,盡可能避免保溫材料被引燃;對于連接層間防火封堵層之上的幕墻面板,可采用不燃材料及耐火極限高的材料,防止面板在短時間內炸裂、自燃和融化;同時還可在幕墻適當位置,預留排煙通道,以減小通道內溫度的聚集,起到降溫的作用;對于熱塑性(詞條“塑性”由行業大百科提供)的保溫材料,尚應考慮保溫材料燃燒時,融化物的流動及下墜時產生火災蔓延的危險。

3)雙層幕墻的防火封堵構造設計難度較大,認可度較底,爭議較多。依據在編的GB50016報批稿6.2.10條的規定,采用雙層幕墻系統的建筑在進行建筑結構設計時,應盡可能的將建筑外墻上、下層開口之間的墻體高度保持在 1.2m以上,或在室內設置自動噴水滅火系統,以使上、下層開口之間的最小墻體高度縮小到 0.8m。以避免雙層幕墻因不符合在編的GB50016報批稿規定的外墻體要求,而將靠室內側的幕墻耐火極限提高到不應低于 1.00h的要求,達到降低幕墻設計難度和工程造價的目的。對于多樓層式雙層幕墻,應參考圖8的設計,在每層的通道中設置不燃的、耐火極限不低于1.00h的防火挑檐,挑檐的寬度不應小于內外層幕墻間距的一半。熱通道式以及井道式雙層幕墻的通道高度,宜根據內外幕墻的防火性能、構造設計、熱工要求和建筑高度確定,通常建議不超過10m范圍。也可通過在上下層幕墻間的隔離板上開啟可控通風口來提高通道高度。
4 結語
目前,我國在采用外墻外保溫系統,且其外層覆蓋有建筑幕墻的幕墻式建筑的防火設計上存在較多的問題和爭議。如保溫材料、幕墻材料的燃燒性能等級選用及其適用高度;外墻外保溫系統的防水透氣與防護層的設置;外墻外保溫系統水平防火隔離帶與幕墻間如何構建有效的防火封堵構造;如何評估幕墻式建筑的防火性能等。為此必須盡快的建立相應的幕墻式建筑防火性能試驗方法,對具有建筑和在設計研究過程中的防火設計進行可靠的試驗驗證和正確評估結果,為各類防火設計規范提供技術依據和保障,避免過低的設計要求給火災防帶來不必要的風險,也應避免過高的、不合實際的要求給相關產品和行業帶來嚴重沖擊和損失。
參考文獻
[1] 陸津龍,建筑外墻外保溫工程火災事故的思考,中國國際門窗幕墻高級研討會,2012年11月
[2] 公安部天津消防研究所規范室,帶鋁塑板幕墻的外墻外保溫系統防火性能試驗報告
[3] 徐曉楠,火災與消防安全, 2009防火封堵高峰論壇,2009年9月
[4] 北京市公安消防總隊,北京央視新址在建附屬文化中心大樓火災情況分析,全國消防工作會議發言材料
[5] 孫林初,淺談建筑的防火封堵,江西化工,2004年第4期
[6] HILTI, 如何正確的選擇防火封堵系統
上一頁123下一頁