4.2.4裝飾線條外觀及功能設計問題
裝飾線條最基本的作用是遮陽。作為突出構件,它承受著更大的風壓,尤其是側風,一般建議將型材截面設計成流線型,以減少風阻。鋁合金型材常規最大擠壓尺寸如下圖:
分段連接件與立柱采用內嵌卡入的方式固定,并通過螺栓鎖緊,這種固定的好處是結合部位傳力是線性的,而并非單純依靠螺釘的集中荷載,因此每個單元板塊只需頂底各一個連接件就能滿足計算要求。連接件與裝飾線交接處采用加厚的PVC-U隔熱塊,并且保證邵氏硬度在85A左右,這樣才能保證螺栓鎖緊和杜絕冷橋。(如圖6)


截面越大型材的壁厚越厚,常用的閉口型材截面控制在對角線250mm以內,超大裝飾線條一般都由若干個型材組合而成。不建議采用鋁板折型,一個原因是精度控制不夠,另外鋁板折邊有圓角,外觀效果不好。
有燈槽設計的裝飾線條,需考慮燈槽走線檢修問題,一般采用扣蓋作為檢修口,把燈具的接線端子放到扣蓋內,并方便燈管的更換。裝飾線條上的用電設備還需考慮防側擊雷和防雷電波侵入措施。
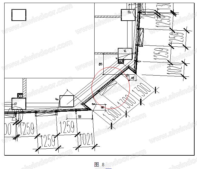
4.3轉角板塊設計及吊裝順序問題
該項目的轉角較復雜,有連續的陰陽轉角(如圖 8),為了保證此部位的施工精度,我們在陽角處采用整體式板塊做法,陰角采用分體式板塊做法,整體式板塊有以下特點:
4.3.1 水平防水路線連續貫通,避免了角部的防水薄弱位置;
4.3.2提高角部安裝精度,使棱角更筆直、有型;
4.3.3 吊裝時候采用特制吊架,保證轉角板塊的平衡。

該項目的大面收口板塊主要設置在塔吊位置和施工電梯位置,但由于建筑四個角部有倒角,倒角上又有兩尖角造型,為了保證尖角造型的垂直度和拼縫精度,施工到轉角時會先掛尖角轉角整體板塊,然后在倒角的斜面中間留轉角收口板塊(如圖 8),收口板塊采用雙母料拼接。這種做法增加了收口板塊的數量,增加了測量放線的工作量,但可以提高安裝精度,時刻控制誤差。
4.4出屋面框架幕墻與單元幕墻收口設計問題
由于屋頂幕墻跨度達到10米,且不允許中間加梁,所以我們采用了鋼龍骨的框架式幕墻,這里帶來兩個難點:一是高空腳手架搭設問題,二是單元幕墻和框架幕墻在女兒墻處收口問題。
關于施工腳手架搭設方案這里不展開贅述,主要是涉及與結構可靠固定、整體穩定性等問題。
該項目出屋面幕墻主要需注意防水密封問題和單元轉框架的收口做法問題。屋面由于幕墻龍骨露在室外,除了龍骨本身表面需要滿足戶外防腐要求外,像一些龍骨的端頭、釘孔、插芯部位,都要采取密封處理,保證水不能進到立柱內腔。因為水一旦進到內腔,就有可能突破防線直接漏進室內或漏到一些不能檢修的地方。而且一般鋼立柱只是表面有防腐處理,內腔都是不能碰水的。第二個需要注意防水密封的部位是女兒墻內側的鋁板封修,特別是與玻璃背部交接處的那道膠縫,一定要保證這道膠縫的施工質量和密封壽命。(如圖 9)
上一頁1234下一頁