陶瓷薄板作為幕墻裝飾材料有很大的優勢:1、其表面工藝裝飾效果豐富,其表面效果可以做出自然素色、大理石、高檔玉石、砂巖等多種飾面,其表面質感可以采用拋光、半拋光、亞光自然面以及有空洞石等。目前采用國際最先進的噴墨工藝可以制造出各種大理石、高檔玉石等飾面效果,其仿真效果目前來看已經非常接近真實石材的效果。可以取代目前日益枯竭不可再生的天然石材;2、面板圖案可以實現個性化訂制,可以根據業主以及設計師的要求實現不同的平面圖案,豐富建筑效果;3、工業化的生產制造使其產品質量、價格、供貨穩定性都有無可比擬的優勢;4、陶瓷薄板重量一般只有12.5kg/㎡,約為傳統石材的七分之一,有效的降低了建筑外圍結構重量,其安裝加工便捷,對建工質量的管控以及工期都有很大的幫助;5、陶瓷薄板的吸水率≤0.5%,低吸水率使其抗凍、抗裂、抗滲污性能優越,沒有色差,沒有玻璃自爆的隱患;

三、陶瓷薄板幕墻的工藝以及可靠性
1、陶瓷薄板的設計依據
參照《建筑幕墻》GB/T 21086-2007中人造板幕墻規定、《玻璃幕墻工程技術規范》JGJ 102-2003、 GBT 23266-2009 《陶瓷板》、 JGJT172-2012 《建筑陶瓷薄板應用技術規程》、 GBT 217-2007 《建筑幕墻用瓷板 》等相關標準;將陶瓷薄板外墻設計成干掛幕墻系統,并通過相關的檢驗檢測來驗證幕墻系統的可靠度,陶瓷薄板幕墻主要分為隱框和明框幕墻。
2、陶瓷薄板幕墻安裝系統介紹:
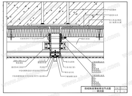
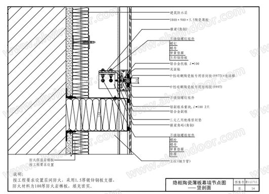
陶瓷薄板幕墻安裝其結構做法類似于全隱框或者明框玻璃幕墻(詞條“明框玻璃幕墻”由行業大百科提供)型式。即:通過鋁合金副框與陶瓷薄板采用專用結構膠相粘,并通過壓塊與支撐鋼龍骨固定,同時陶瓷薄板背后按照設計要求設置加勁肋及背網。
2.1、定義:陶瓷薄板幕墻系統主要由陶瓷薄板及其支承結構(詞條“支承結構”由行業大百科提供)體系組成、可相對主體結構有一定位移能力,不分擔主體結構所受作用的建筑外圍護結構。
2.2、系統形式:采用類似全隱框或者明框玻璃幕墻的框支撐形式。通過結構膠使陶瓷薄板與鋁合金副框粘結,鋁合金副框通過鋁合金壓塊與支撐鋼龍骨固定,這樣使得陶瓷薄板與結構形成一個完整干掛幕墻體系;另外每塊陶瓷薄板下側設置相應的鋼托片來承受面板的自重,避免結構膠承受相應的面板重力荷載。
2.3、系統安全性和撓度控制措施:為控制板材的撓度和確保板材的使用安全性,在陶瓷薄板背后設置了相應的加勁肋及安全增強復合層,安全增強復合層能夠有效避免板塊在破裂時局部或整體掉落的危險。
2.4、系統維護性考慮:面板采用鋁合金副框及壓塊固定系統,保證每塊陶瓷板塊相對獨立,更換維護便捷。
2.5、系統施工效果考慮:系統通過支撐龍骨三維可調設計、鋁合金副框與鋼龍骨之間可調模制柔性墊片設計,來調整板塊之間的平整形,確保最終施工效果。
2.6、系統抗震性、經濟性考慮:面板組合結構與支撐龍骨柔性接觸,板塊與龍骨均為浮動式連接,抗震性能較好;采用鋼龍骨支撐系統,受力可靠,用材經濟。
2.7、系統質量性、環保性考慮:通過小單元連接方式,工廠化生產,質量保證,并且施工不受環境溫度影響,可減少大量的建筑垃圾,有利于環境保護。



3、陶瓷薄板幕墻系統可靠性論證:
3.1陶瓷薄板材料本身性能對規范的適應性(物理性能、力學性能、化學性能等)
3.2陶瓷薄板幕墻物理性能與工程的適應性(抗風壓、氣密、水密、平面內變形、耐撞擊等)
3.2.1陶瓷薄板幕墻按照設計要求背后設置加強肋以及背網,增加抗風壓以及抗撞擊性。

3.2.2、陶瓷薄板變形圖

3.2.3、陶瓷薄板幕墻系統檢測數據:
上一頁12345下一頁