本篇文章內容由[中國幕墻網ALwindoor.com]編輯部整理發布:


錨栓測試最少測試10組,按75%置信度,5%的失效概率得到標準值。
實際工程中,還要考慮實際參加工作的背栓的位置進行設計計算,通過下述測試可以看出背栓所處板面位置,對其承載有一定影響。此測試按照ETAG 034 PART 1 5.4.2.2.1規定標準測試方法,對位于板中,板邊,板角部三個位置,在不同支撐半徑下的測試結果:
|
背栓位置及不同支撐直徑 |
破壞荷載(KN) |
破壞狀態 |
|
Fm,u |
Fc,u |
|
板中 |
Ø1000mm |
6.9 |
5.0 |
板材破壞,背栓拔出 |
|
Ø600mm |
10.9 |
7.6 |
|
Ø300mm |
11.7 |
10.9 |
|
板邊 |
Ø1000mm |
5.4 |
5.0 |
|
Ø600mm |
6.8 |
5.0 |
|
Ø300mm |
8.4 |
5.1 |
|
角部 |
Ø1000mm |
4.5 |
3.7 |
|
Ø600mm |
6.3 |
4.1 |
|
Ø300mm |
8.2 |
5.8 |
|
Fm=平均值;Fc = 在75%置信度下的標準值,如采用95%置信度,標準值會提高。 |
剪力測試按照ETAG 034 PART 1,5.4.2.2.2.2規定的標準測試方法,結果如下:
|
剪力 |
發生1mm位移下的荷載 |
破壞荷載 |
破壞狀態 |
|
Fm,1 |
Fc,1 |
Fm,u |
Fc,u |
|
螺桿長度50mm |
1.9 |
1.1 |
2.8 |
2.4 |
螺桿發生彎曲變形 |
|
螺桿長度40mm |
1.9 |
1.7 |
3.5 |
3.3 |
|
Fm = 平均值;Fc = 75%置信度的標準值,如采用95%執行度,標準值提高。 |
拉剪組合測試按照ETAG 034 PART 1, 5.4.2.2.3,在30o,及60o兩種組合角度的測試結果如下:
|
背栓位置及支撐直徑 |
破壞荷載(KN) |
破會狀態 |
|
Fm,u |
Fc,u |
|
30o |
板中 |
Ø1000mm |
9.9 |
9.2 |
板材破壞,背栓脫出。 |
|
Ø600mm |
11.2 |
9.4 |
|
Ø300mm |
13.0 |
11.8 |
|
60o |
板中 |
Ø1000mm |
12.6 |
11.0 |
|
Ø600mm |
12.2 |
10.8 |
|
Ø300mm |
14.3 |
12.6 |
|
Fm = 平均值;Fc = 75%置信度的標準值,如采用95%執行度,標準值提高。 |
混凝土掛板的預留背栓底座及連接如下圖所示(僅供參考):

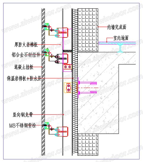
混凝土掛板的安裝與傳統的石材背掛系統類似,典型細部節點如下圖所示(僅供參考):


五:項目應用情況:
1:某大樓的安裝情況如下:



2:已竣工項目圖片:







六:結束語:
預應力混凝土掛板以其特有的高強穩定特性,以及色澤的多樣性在歐美建筑中得到了廣泛應用。但目前預應力混凝土掛板在我國建筑外墻上使用還剛剛起步, 然而隨著它的應用已越來越受到建筑師和用戶的青睞,預應力混凝土掛板作為新材料,必將憑借其獨特的優勢在我國建筑中得到廣泛應用。
上一頁12下一頁