本篇文章內容由[中國幕墻網ALwindoor.com]編輯部整理發布:
摘要:重點闡述玻璃幕墻、雙曲面鏤空鋁板的設計思路及實現方法,介紹了如何運用BIM技術解決在設計與施工中遇到的難題
關鍵詞:玻璃幕墻 雙曲面鏤空鋁板 BIM
一、工程概況
福州市冠城大通廣場位于風景秀麗的閩江沿岸,海峽國際會展中心正對面。是由福建冠城匯泰發展有限公司投資開發的高端游艇俱樂部,集配套辦公、配套公寓式酒店于一體的大型綜合項目。
該項目的方案設計是恩蒂埃NDA建筑設計咨詢(上海)有限公司,其具有豐富水岸和碼頭開發經驗。建筑設計是福州市規劃設計研究院,幕墻施工單位是北京磊鑫建筑工程有限公司。銳建工程咨詢有限公司做為幕墻專業顧問全程參與了項目深化設計與施工。
項目由兩幢左右對峙的單體建筑組成,方案設計結合了明朝從福州啟航的鄭和寶船、福建特色土樓等設計元素,表達了勇于創新,百折不撓的精神。整體橢圓形的造型,借鑒了土樓的空間運用,外立面通過鋁合金百葉構件映射寶船龍骨的造型,高低錯落的百葉在提供遮陽的同時豐富了立面的層次。外立面從遠處看建筑象正在建造的寶船,又象盤臥在岸邊的巨鯤,隨時準備回歸大海(圖1、2、3)。
本工程立面主要由外側弧形玻璃幕墻、外挑豎向鋁合金弧形百葉線條、雙曲面鋁合金格柵組成(圖4)。玻璃幕墻為外層裝飾結構,沒有保溫節能要求,采用單層鋼化玻璃及夾膠玻璃(用于外傾部位)。在合同要求時間內,合理設計幕墻節點、施工方案,充份利用BIM技術提前下料、精確定位,順利完成了該工程。




二、玻璃幕墻的設計難點與BIM應用
本工程的玻璃幕墻完成面是一個螺旋漸變的曲面結構(圖5),在頂部和中間轉折處圓板過渡位置的玻璃均為雙曲玻璃,其余的為平板玻璃。經統計共有2000多種規格尺寸。在設計方案時需要考慮以下幾點:1)如何結合豎向鋁合金通長百葉進行玻璃幕墻系統設計;2)豎向通長的鋁合金百葉如何實現制作和安裝;3)如何實現更快的安裝速度。
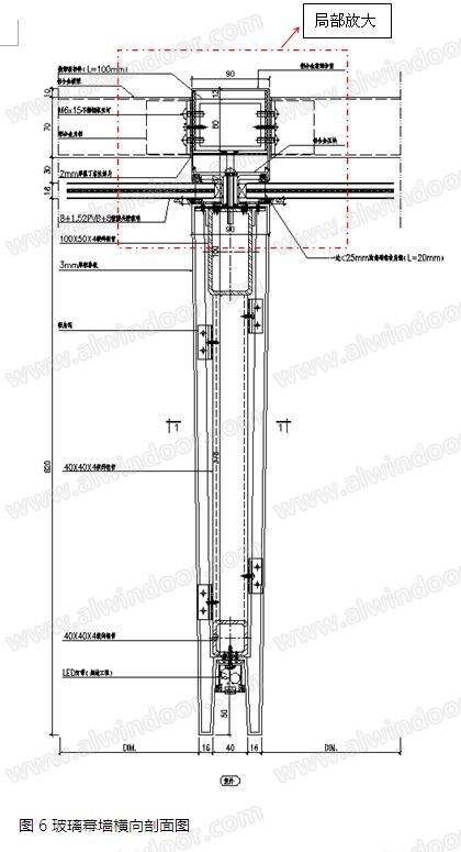
本項目鋁合金百葉外挑較大達到620mm,如果是按通常的做法采用鋁合金型材設計,成本較高而且強度較低,抗側向風載能力低、變形(詞條“變形”由行業大百科提供)較大。所以在設計時按立柱外裝的方法,將外側的鋁合金百葉的主龍骨同時做為玻璃幕墻的立柱,龍骨采用鋼桁架進行設計,外包3mm厚鋁單板,大幅降低了玻璃幕墻和百葉的造價。節點設計如(圖6)所示。


鋁合金百葉高度較大,如果分段安裝一是安裝工藝復雜,二是安裝速度慢,三是平直度較差。因此,現場采用了鋼桁架在工廠分段加工,運至現場在工裝臺上組裝鋼桁架并安裝鋁單板,最后整體吊裝的方案(圖7),現場實施效果很好,速度快達到預期目的。

玻璃幕墻運用BIM主要是解決玻璃板塊定位和施工進度問題,由于工期緊(從深化設計到基本完工僅6個月),在深化設計之初就運用BIM技術,在設計方案公司確定的建筑表皮上,進行分格和定位,直接確定各個玻璃板塊的大小和尺寸,和三維安裝點(圖8)。將玻璃料單下到玻璃加工廠生產,而不是通常現場量尺寸復核后再下料,因此節約了大量的時間。

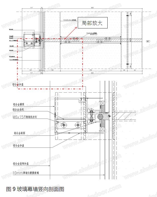
玻璃提前下料對施工精度要求較高,雖然在施工過程中也采用全站儀進行打點放樣,但仍然會存在精度誤差。因此,在對玻璃幕墻節點設計時,著重考慮了對施工誤差的消化。本項目玻璃幕墻的形式是豎明橫隱,由于豎向是大線條明框,因此天然存在水平方向入槽深度較大的優點,誤差消化比較有利,采用大壓蓋就能較好的吸收誤差。但橫向隱框膠縫要求較窄,要求橫梁安裝精度較高。設計中考慮到由于豎向大線條的分隔,橫梁不通視,水平高度相差一些也察覺不到,因此將橫梁設計成后裝形式,即先安裝玻璃后安裝橫梁,根據玻璃的實際拼縫位置來安裝橫梁,如下圖(圖9)所示。

三、雙曲面鏤空鋁板的設計難點與BIM應用
雙曲面鏤空鋁板位于建筑的端部,內側為主體鋼結構(詞條“鋼結構”由行業大百科提供)。本項目曲面鏤空鋁板的設計和實施難點有:1)鋼結構與鏤空鋁板不是同一家公司設計和施工,鋼結構的實際位置需要測量后,返回到模型中與鏤空鋁板BIM模型合模進行碰撞檢驗。對碰撞的地方或距離較小處要調整鏤空鋁板完成面的位置,并征得業主及方案公司的同意。對結構距離較遠處需要增加相應的傳力構件;2)方案公司要求鏤空鋁板必需有一定的厚度(60mm厚,如圖10所示),鏤空鋁板截面為矩形,由于雙曲面的特性,鏤空鋁板每個面的曲率都是不同的,無法采用鋁管直接冷彎成型的辦法實現;3)方案公司要求鏤空鋁板盡量通透,即除了層間位置可以有背襯骨架外,其余位置不允許鏤空鋁板背后出現明顯的骨架影子。
鋁合金鏤空鋁板截面較厚,截面剛度也較大,采用點連接的方式固定在樓層處鋼梁上,即每片鏤空鋁板為一個樓層高,采用4點連接在鋼梁上。經計算鋁板的壁厚6mm可以滿足要求。連接處設計了三向調節支座,可滿足三向位移要求保證安裝精度,如下圖(圖11)所示。支座處的鋁管受力較大,為了保證節點受力滿足要求,在鋁管內部安放了一段鋼矩管做為主要受力骨架,如下圖(圖12)所示。



經過反復比選,最終采用了組成鏤空鋁板的4片鋁板單獨加工,鋁板的雙向彎曲弧度在BIM中提取,分別加工后再組裝焊接打磨成型,最后表面氟碳噴涂烤漆后運到現場。
由于每片鏤空鋁板都是不同的,規格及尺寸均不一致,沒有互換性。借助BIM技術,通過對每片鋁板進行排序編號,使加工和安裝均能輕松找到相應的材料及位置。鏤空鋁板的安裝支座同樣按模型導出相關數據,在現場采用全站儀定點,通過支座的三維調整保證了鏤空鋁板完成面的平滑過渡,如下圖(圖13)所示。

四、結語
福州冠城大通方場項目通過各項創新設計,結合BIM技術不但完美實現了方案公司的設計,還節省了大量的時間,在較短的工期內就將項目落地。獲得業主對設計和施工實力認可,為同類型的幕墻設計施工提供了借鑒意義。最后也鳴謝北京磊鑫建筑工程有限公司戴圣平、王宏勝兩位工程師提供的現場資料及施工過程中的大力協作!
作者單位:銳建工程咨詢有限公司