本篇文章內容由[中國幕墻網ALwindoor.com]編輯部整理發布:
摘要:大型場館類的建筑造型往往不會循規蹈矩,異形建筑與大跨度的屋面疊加勢必會對防水(詞條“防水”由行業大百科提供)造成較大的困擾,本文基于防排結合的理念,在泰順會議中心項目中提出了對屋面及幕墻的防水解決方案。
關鍵詞:幕墻設計 曲面(詞條“曲面”由行業大百科提供)金屬屋面 大跨度屋面 防水設計
1、導語
以扎哈·哈迪德(已故)、馬巖松等國內外知名建筑師為代表的超現實主義建筑師往往熱衷于創作出造型奇特、富于挑戰的建筑,銀河SOHO、望京SOHO、凌空SOHO、南京青奧中心等一系列非線性雙曲面的建筑在給城市帶來新穎的天際線同時也為建筑防水(詞條“建筑防水”由行業大百科提供)帶來了挑戰,一方面雙曲面建筑的排水路徑非常不規律,另一方面大跨度的建筑在極端惡劣的臺風天會導致瞬時積水量驚人,給排水防水帶來重大壓力,因此在此類場館建筑中防水設計難度極大,本文以泰順會議中心項目為例,闡述在該類型建筑中屋面及幕墻的防水措施。
2、 項目概況
泰順會議中心工程位于溫州市泰順縣,建筑最高點為18.8米,功能為會議和宴會,主要系統包括鋁鎂錳金屬屋面、鋁板幕墻、玻璃幕墻、開放式石材幕墻、門窗和百葉,外表皮面積約兩萬余方,建筑平面造型呈蝴蝶狀,形態優美,線條流暢,屬于當地地標性建筑。(圖1、圖2、圖3、圖4)

(圖1)

(圖2)

(圖3)

(圖4)
通過效果圖分析可歸納本工程的幾大特征:1、屋面跨度較大,兩側最遠距離達到198m;2、屋面與立面的界限不明確,存在大量過渡及收口裝飾;3、屋面有三個不同高度的區域及兩種不同顏色的材質組成;4、屋面存在不同顏色的單曲面板、雙曲面板和平面板組合的情況,基于以上特征,外立面防水難度進一步增加。
3、 防水設計思路
鑒于本工程跨度大,造型豐富的特色,積水面多及水流向多樣性的現狀,防水設計采用分段排水、疏堵結合、多層封修的理念,多維度得確保實現建筑零滲漏(詞條“滲漏”由行業大百科提供)。
3.1 分段排水
本工程在設計之初便于給排水專業緊密結合,一方面結合建筑自身形成明顯的高差來實現有組織排水加自由排水,另一方面由于整體跨度較大,因此對整個屋面進行劃分成21個排水區,以緩解集中排水槽的壓力和無組織排水區域的水量,避免雨水無序穿插滯留。(圖5)

(圖5)
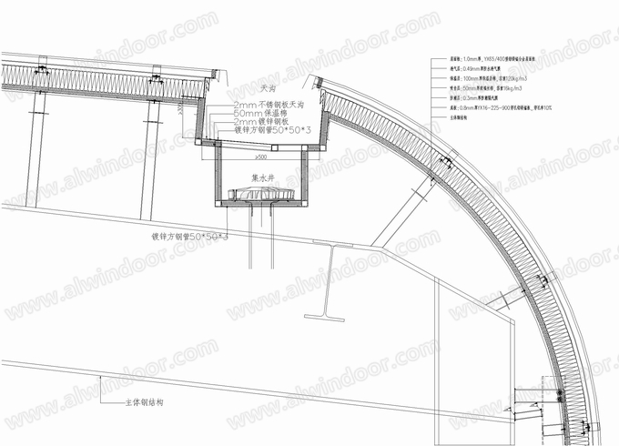
本工程立面上為兩側高,中間低的形態,兩側宴會廳和報告廳為了避免出現雨水墜落形成“水簾洞”的狀態,將其人為挑高不作為排水面,在邊緣設置隱藏式集中排水槽,排水槽隱藏在挑檐內,將局部水引導向邊部,大面水則集中從中間的最低點排放,發生暴雨時瞬時水量極大,需要通過兩側18個排水區邊緣的內嵌式排水井引向地面,中間大堂位置為“人”字坡屋頂,向兩側自由排水,整體屋面造型在立面上呈“W”形。(圖6、圖7)

(圖6)

(圖7)
3.2 疏堵結合
3.2.1、屋面系統
本項目屋面系統占比超過50%,且跨度大、造型多、接口多,是防水的重點。由于設計之前該項目的鋼結構已經基本完成,通過對現場建筑結構的復核(圖8)與幕墻犀牛模型(圖9)的比對,來確保數據的真實可靠,尤其是針對鋼構懸挑較大部位的預起拱與變形情況的分析,與后續的排水坡度二次調整至關重要。

(圖8)

(圖9)
屋面部位標準系統采用直立鎖邊技術(圖10、圖11),建筑方案中對于屋面做了雙色處理,即由淺灰色鋁鎂錳板與深灰色鋁鎂錳板結合的曲面效果,但屋面處如有兩種鋁鎂錳板拼接會形成大量弧形的連接點,由于板塊波浪狀的造型對接難度很大,極易形成漏水點,因此設計階段考慮采用3mm厚鋁單板(詞條“鋁單板”由行業大百科提供)對兩種顏色的界面進行了區分(圖12),同時屋面板上墻前統一為淺灰色,到現場后通過現場再在深色區噴涂深灰色有機硅超耐多彩柔性涂料,該方案避免了屋面出現大量接口,減少了漏水點,讓鋁鎂錳屋面更整體。
由于屋面系統側邊為了效果的延續性,延伸到立面后又成為了立面系統的一部分,而立面造型局部呈現反斜面造型,為避免內部微量水在反斜面滲透,會在檐口設置滴水線,同時結合“水往低處流”的特征在板塊內部最低點開設泄水孔,降低巖棉吸水導致變形與漏水的風險。

(圖10)

(圖11)

(圖12)
在所有屋面交接的最低點,統一設置大排量集水井,有效在臺風暴雨天氣將積水排出,集水井安裝在2mm厚不銹鋼天溝上,天溝內側為保溫層(詞條“保溫層”由行業大百科提供),保溫層襯板同樣采用2mm不銹鋼板確保其在大量水積壓的時候不會導致水在壓力作用下變形出現縫隙滲透入室內(圖13)。

(圖13)
集水井除了在屋面標高最低點設置之外,在頂面與立面交界位置也同樣加以設置,且每條水槽寬度不小于500mm,可有效分流頂面積水對立面的影響,降低頂上積灰在立面上造成明顯痕跡(圖14)。通過在多處設置集水井的方式有效把頂部積水分流,有序得疏導至雨水管中,天溝設置數量及尺寸經過以下公式驗算后取得。

(圖14)
經查表,工程所在地設計最大降雨強度Rain=127mm/hr,天溝集水長度L=51.8/(6-1)=10.36m;每段分擔寬度B=42m,經計算,集水面積Area=L×B=10.36×42=435.12m^2,分擔雨水量Qr=Area×Rain/1000/3600=435.12×127/1000/3600=0.01535m^3/sec。
天溝彩色板摩擦系數n取值為0.0125,寬度Bc=0.6m,天溝設計水深Hc=0.35×0.8=0.28m;泄水坡度S=0.001泄水面積Ag=Bc×Hc=0.6×0.28=0.168m^2泄水系數R=Ag/(Bc+2×Hc)=0.168/(0.6+2×0.28)=0.1448m,排水速度Vg=R^2/3×S^1/2/n=0.1448^2/3×0.001^1/2/0.0125=0.6978m^3/sec排水量(采用曼寧公式計算) Qg=Ag×Vg=0.168×0.6978=0.1172m^3/sec>0.01535m^3/sec,現有的分布及尺寸滿足設計排水量要求。
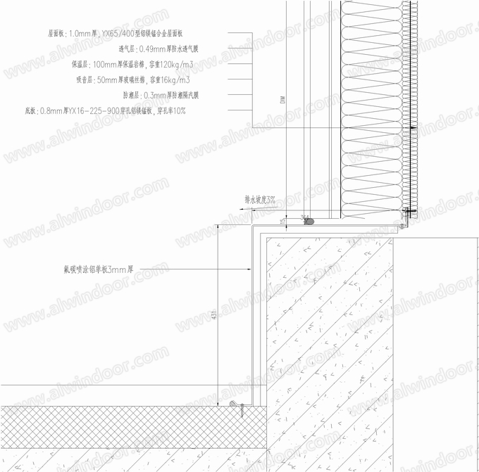
屋面板落地收口封堵位置存在兩種情況,一種是與混凝土(詞條“混凝土”由行業大百科提供)的收口,采用在混凝土室外側包一塊3mm厚鋁單板,向外設置3%的排水坡度以防平面積水,屋面板與鋁板之間填泡沫棒打硅酮耐候密封膠,確保大量水通過鋁板排出室外,微量水被密封膠阻斷(圖15)。另一種情況是屋面板直接伸入室外覆土層,則采用鍍鋅鋼板(詞條“鍍鋅鋼板”由行業大百科提供)在其底部進行封堵,避免水汽倒灌腐蝕(詞條“腐蝕”由行業大百科提供)鋼材,同時鍍鋅鋼板開設泄水孔,可將內部冷凝水等積水通過泄水孔排出(圖16)。

(圖15)

(圖16)
3.2.2、石材幕墻系統
石材幕墻部分為了減少分縫對立面形成的干擾,同時也為了降低膠污染導致的視覺破壞,采用了開放式石材幕墻系統(圖17),相鄰石材面板之間設置15mm與5mm的寬窄縫,由背栓連接在橫梁處,主要防水依靠石材內側的二道防水,采用2mm鋁單板鈍化防水,鋁板接縫處填充泡沫棒并封堵防水密封膠(圖18)。

(圖17)

(圖18)
石材幕墻頂部與鋁板交接處打密封膠封堵,水平石材板塊向外傾斜設置3%排水坡,內部設置水平防水鋁板,與垂直鋁板為整體折邊,形成了完整的二道剛性(詞條“剛性”由行業大百科提供)防水體系(圖19)。

(圖19)
3.2.3、玻璃幕墻系統
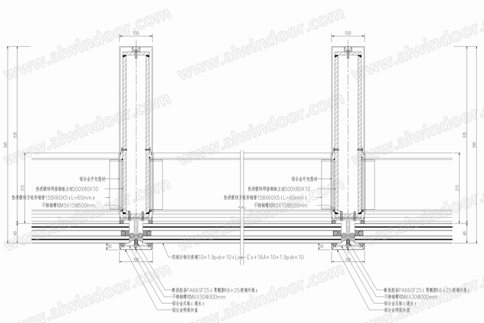
玻璃幕墻系統主要在大堂等位置,單根幕墻立柱最高點達到了14米,鋼柱寬達535mm,采用鋁包鋼的裝飾形式,玻璃采用10+1.9pvb+10(Low-E)+16A+10+1.9pvb+10四超白雙夾膠鋼化玻璃,跨度大、板塊大、存在的變形大使得玻璃幕墻的防水必須運用多道封堵的方式:室內側為三元乙丙橡膠條連續壓實玻璃以實現密封,玻璃與立柱前端分別采用兩條泡沫棒與兩道密封膠封堵,外端的鋁合金壓塊采用通長設置,壓塊兩側為三元乙丙橡膠條壓實,同時在膠條外側再打一道密封膠(圖20)。通過這樣多道封堵的方式來提升玻璃幕墻的防水密閉性。

(圖20)
3.3、多層封修
通過前文不難發現,任何一套系統的防水方式都不是靠單一的封堵能解決的,除了標準系統,更容易暴露出漏水點的收邊節點上需要采用多層封修的方式來提高防水效率,例如屋面板在立面上與鋁板幕墻交接處,既通過外部板塊咬合的方式形成自然高差防止豎向雨水的倒灌,同時再在其內側設置封堵板,將水汽隔絕在巖棉之外,避免保溫棉受潮變形(圖21)。

(圖21)
4、 小結
在設計階段通過各種設計軟件和手段,通過分段排水、疏堵結合、多層封修的理念可將一個大型項目切分成多個防水分區進行多重防護,同時緊密結合現場的實際情況,對項目進行“量體裁衣”式的防水設計,但設計僅僅是項目落地的第一步,后續更需要通過加工尺寸的精確裁切、材料運輸和堆放過程中的成品保護以及現場安裝的高質量完成,才能實現最初的防水意圖,否則再多的防水理念也只能流于形式。
作者單位:浙江中遼建設有限公司
浙江共濟幕墻有限公司