一、工程概況
深圳大運中心Ⅲ標段(游泳館)外圍護工程項目位于深圳市龍崗區體育新城深圳世界大學生運動會體育中心,東側為80m寬的黃閣路,南側為80m寬龍翔大道,西側隔70m寬龍興路與銅鼓嶺相對,北側為如意路。
本項目工程總建筑面積42958.48m2,總投資約為6.7億元。室內設
固定座席數1312 席,活動座席數1706席,共計3018席。設室內標準比賽池50×25×2(m),室內訓練池51×25×2(m)及室外戲水池各1個。層數為地下一層地上二層(局部三層),
鋼筋砼
框架+
鋼結構。建筑物高23.5米,鋼結構的跨度為92.4米。游泳館側面及屋頂均為三角形
幕墻,在大三角形幕墻各邊相交處均采用
鋁單板裝飾進行
密封,整體構成
巖石狀的水晶幕墻并在游泳館中部設置有電動
遮陽百葉。水晶幕墻共有98個大三角形,每個大三角形再均分9等分,形成72個小單元三角形。(如圖1.1)

采光屋面材料選用了
透光性能較好的淺綠色夾膠
鋼化玻璃及透明的鋼化
夾膠中空玻璃作為屋面的外圍護材料,在分格上采用了三角形大板塊設計,使得整個建筑屋面靚麗、通透,同時多個三角形板塊組成了一個三角形屋面單元,而不同角度的屋面單元構成了整個建筑鉆石狀的水晶外形。整個建筑屋面靚麗、通透,層次分明,給人一種栩栩如生、呼之欲出的活潑動感。(如圖1.2~1.3)


二、采光屋面系統設計分析
2.1、采光屋面系統的構成
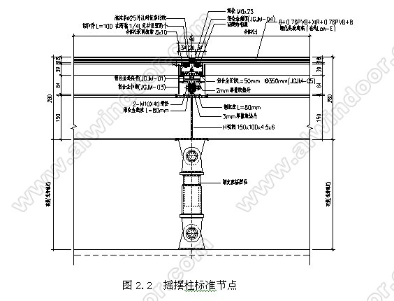
采光屋面
面板選用了透光性能較好的淺綠色夾膠鋼化
玻璃及透明的鋼化夾膠
中空玻璃,所有玻璃自重及外
荷載由
玻璃面板通過中性
硅酮結構膠及承重托條傳至
鋁型材副框,再由
鋁型材轉接件及
焊接鋼底座傳至鋼
檁條,最后通過周邊的Y型懸挑鋼
支座連接件及中間的可調雙向鉸搖擺
撐桿柱傳至主體鋼結構上(如圖2.1~2.2)。


上一頁123456下一頁
工程位置: 廣東深圳
建筑高度: 36米
幕墻設計: 德國gmp建筑設計事務所
幕墻材料: 玻璃及PC板屋面系統