由于在每個開啟窗設有一個開啟電機,所以在設計選用電動開啟電機中,需要考慮如下幾點:
a) 選用電機的開啟推力及自鎖力,IP等級;
b) 所用電線線徑
截面積大小
c) 配電系統預留的功率及電壓、電流大小;
d) 開關按扭的設放。
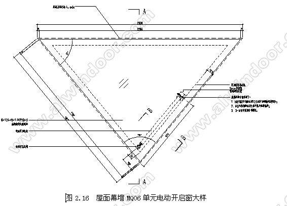
綜合考慮電機因素后,在每個開啟窗側邊設置一臺電機,由于開啟電機與玻璃面板產生有夾角,所以電動選用時考慮推力分力產生損耗,經計算選用推力為1600N的電機。連接電機所選用的線徑截面積大小可以通過相關計算公式進行計算:
總線線徑=總電流數(每組馬達數)×中央控制箱離最遠馬達距離×0.019(系數)
開啟窗的開啟電機在鋁合金窗扇位置通過專用電機安裝
支架采用
不銹鋼螺栓緊固在窗扇上,在專用安裝支架上通過開口銷與開啟電動上萬向桿端關節
軸承連接固定;開啟電機底部同樣采用萬向桿端關節軸承與U型連接
鋼板通過
高強螺栓、自鎖
螺母固定連接;U型連接鋼板通過鋼
角碼及高強螺栓與鋼次檀連接。
由于選用電動推力較大且開啟電機安裝在開啟窗側邊,所以在開啟窗框架及角部采用注
組角膠及采用連接螺釘加強固定。(如圖2.16~2.18)



2.5電動遮陽百葉設計:
電動遮陽百葉分布在幕墻MQ06下方主體鋼次梁小三角形范圍內,鋁合金百葉片設計采用了450mm寬的梭形百葉系統。該系統葉片呈梭形,雙弧面,造型優美,具高科技質感,葉片截面大且為
中空結構,
強度高,適合大跨度使用。葉片在0度到105度可調,可以根據太陽的照射角度來調整葉片的角度,從而達到遮陽采光的最佳效果。隱藏式電機聯桿推動,能保證整體美觀效果。獨特的連桿驅動機構和葉片夾設計,保證三角形葉片開關靈活,同時實現電動遮陽效果。(見圖2.19~2.20)


2.6屋面造型鋁板設計:
屋面結構體系復雜呈三維空間模型并由幾大單元三角形板塊組成,在
單元板塊之間的夾角通過3mm厚鋁
裝飾板連接封修。為了達到建筑整體效果,在屋面屋脊及排水槽均采用相對獨特及相連貫作圖方法構造出裝飾造型(如圖2.21)。
在確定每個相鄰單元板塊相交的垂直夾角后,采用通過相同的作圖方法即可構造出相應的造型。在屋脊及排水溝相交的位置采用每個相交點進行連線相切,可以得出其相交后造型。

三、采光屋面系統施工重點難點分析
3.1屋面鋼支撐體系放線要點:
屋面結構體系復雜呈三維空間模型,對鋼支撐體系安裝定位要求也非常高。由于本工程建筑物是關于X軸和Y軸對稱,由七大榀單元組成,所以在測量放線過程中將每個單元邊角相對應點,只要將其中一大榀單元的測量坐標定位后,其余通過每軸線之間的距離相加或相減可得相應測量坐標。由于建筑物是呈三維空間體系且每一大榀支撐點較多,所以我司在放線過程中借助全站儀測量儀器三維定位,通過引用建筑規劃的整體坐標(俗稱:大體坐標),由全站儀將大體坐標引至建筑物體內,再將引至建筑物內的坐標點作為放線測量原點。確定測量放線原點后,通過原點將每榀小單元三角形板塊支撐體系鋼邊檀位置桿件兩端的坐標確定后,由Y型懸挑鋼支座連接件將兩邊側的鋼主檀固定,其余中間位置支撐點再由兩端支撐點確定桿件長度進行均分。(如圖3.1~3.3)



上一頁123456下一頁
工程位置: 廣東深圳
建筑高度: 36米
幕墻設計: 德國gmp建筑設計事務所
幕墻材料: 玻璃及PC板屋面系統