


由于國家尚未頒布專用于幕墻行業的GRC材料行業技術規程及國家標準,目前市場上的GRC產品采用《玻璃纖維增強水泥外墻板》JC/T1057-2007、《玻璃纖維增強水泥(GRC)裝飾制品》JC/T940-2004標準,性能指標并不能完全匹配于建筑外墻,這極大地限制了此類新型材料的大規模應用。本工程作為國內外響當當的標志性建筑,對于建筑外墻的GRC材料性能指標參數需要有較高的要求,下表為本工程參照其他材料規范提出的GRC性能指標參數表。

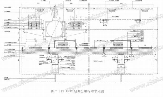
本工程采用的新型GRC面板材料,不僅僅體現在材料的物理、化學特性參數方面,還在構造設計、制造工藝和安裝工藝方面。采用創新的GRC的結構構造體系,并使用數字化設計技術及制造工藝,通過背附式鋼架與GRC面皮共同作用,實現了其“大跨度”、“大曲面”的造型要求。本工程最大的單塊GRC面板跨度可達6m×2,5m。新型的GRC面板材料采用可單塊拆卸的原理構造,整套系統全部采用螺栓(詞條“螺栓”由行業大百科提供)連接,“傻瓜式”安裝,便攜式拆卸。
上一頁12345下一頁