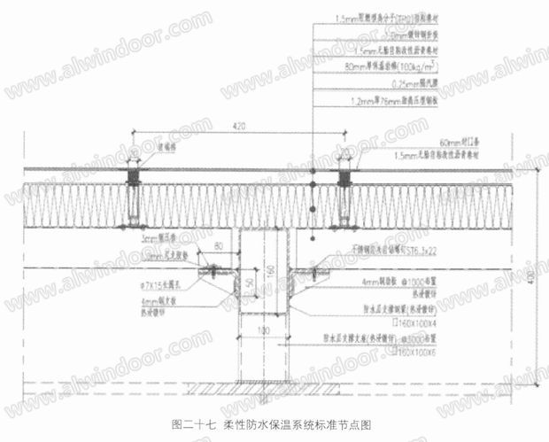
防水、排水體系設計及重點:隨著數字化技術的突破,文化類建筑外皮的復雜造型技術難點已經而克服,但是其使用功能并沒有因為數字技術的提高而得到提升,主要的原因在于建筑屋面的防水系統過于脆弱。據統計,國內外新建的文化類建筑屋面幾乎無一例外均存在著程度不等的雨水滲漏難題,且維修困難。造成這方面的原因很多,首先造型復雜,對屋面防水系統的連續性及施工難度帶來極大的困難,這是文化類建筑屋面滲漏的主要原因。其次,目前文化類建筑的防水屋面的主流是采用剛性防水屋面板系統,但此屋面板類型對適應“復雜非連續”造型屋面存在極大的技術缺陷。不僅施工難度大,接口多,且很難達到精密咬合的基本技術要求,從而埋下了漏水隱患。鑒于本工程極其復雜的屋面造型,及存在著大量的穿透點鋼牛腿,綜合借鑒了其他文化類建筑與目前主流的“剛性防水”金屬屋面的優點,設計了新的防水系統。此系統采用兩道防水設防,設置了兩道獨立的防、排水層。
外層采用1,5mm阻燃型TPO防水卷材,具有優異的耐候、阻燃、抗變形等特點;內層采用1,5mm改性瀝青防水卷材,具有穿透可自愈功能的塑性變形優點。兩層防水層共同作用,可以避免以往建筑中采用單一防水設防所導致的漏水隱患。


本工程的屋面不僅穿透點繁多,其屋面更是采用內凹的造型,十分考驗排水系統的可靠性,這在文化類建筑中還尚屬首次采用,為了應對這種挑戰,我們創新提出“防排水一體化、排水系統多道化、排水漏斗共同工作”等指導思想和多項措施:
(1)根據屋面的造型,在屋面的最低洼部位分段、分梯次配置多條不銹鋼天溝;

(2)設置多道排水系統,各類型排水系統互相獨立。根據降雨強度(詞條“強度”由行業大百科提供)50年一遇的標準設置虹吸排水系統,降雨強度100年一遇的標準設置溢流排水系統,另布置泄流系統以防不測;




上一頁12345下一頁