(4)自然通風形式:設置通風器


(5)設計特點:
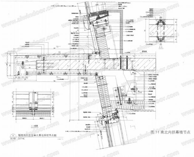
南北直面的幕墻因層間每層均有出挑900的砼結構外包鋁板(詞條“鋁板”由行業大百科提供)的裝飾挑檐打斷了上下幕墻的連貫性,幕墻的系統構造與東西面幕墻存在差異。南北面內拱為逐漸向外傾斜的幕墻,傾斜的角度從90° ~140° 逐漸過渡至最后并在拱底合攏,選用何種幕墻系統使直面和斜面在外觀上保持完整一致性、上下一貫的連續性以及足夠的安全可靠度是設計的關鍵。

采用層間單元的構造設計,板塊從室內安裝,降低了施工安裝難度,又利于日后單元板塊的更換維護。出挑900的砼結構挑檐內襯鍍鋅鋼板(詞條“鍍鋅鋼板”由行業大百科提供)加強鋁板的剛度,加襯保溫巖棉有效提高隔音效果。挑檐預留檫窗配合導軌,便于以后清潔維護。因挑檐的影響,玻璃選用不同的Low-E中空玻璃,與東西面形成對比,反襯東西面的光滑質感。
3.2裙樓幕墻

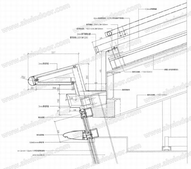
過街橋部分幕墻跨度達9m高,幕墻向外傾斜75° ,平面弧形逐層外移,成倒錐形的曲面表皮;系統亦采用鋁包鋼框架明框玻璃幕墻系統,可見光透明部分玻璃采用10Low-E(超白)+1,52PVB+8+12A+8中空夾膠鋼化玻璃,層間非透明部分采用8Low-E(超白)+1,14PVB+6+12A+6中空夾膠鋼化玻璃和2mm鋁板背襯板;主龍骨采用300mmX80mm焊接鋼管+鋁含金扣板包飾(表面氟碳噴涂);裝飾構件(詞條“構件”由行業大百科提供):橫向鋁合金裝飾蓋板(100mm寬×300mm厚),豎向小蓋板,表面氟碳噴涂。該處幕墻最大難度之處為西立面倒錐型弧形幕墻與弧形屋面相交接處,曲面與曲面相交線為馬鞍型的雙曲線,所有上排橫梁和玻璃提料放樣均采用空間三維放線定位。



4.幕墻結構計算分析與校核
4.1設計依據
4.1.1設計參數取值
基本風壓(詞條“基本風壓”由行業大百科提供):主樓W0=050kN/m2裙樓W0=0,45kN/m2
基本雪壓(詞條“基本雪壓”由行業大百科提供):S0=0,40kN/m2,
地面粗糙度(詞條“地面粗糙度”由行業大百科提供):B類。
抗震設防烈度:6度
設計基本地震加速度:0,05g
4.1.2風荷載
㈠)風荷載標準值wk:據《建筑結構荷載規范》(GB50009-2012)
wk=W0× uS1×uz×β gz
W0基本風壓
uz風壓高度系數,
βgz陣風系數,
us1局部風壓體形系數


(2胺南京航空航天大學空氣動力研究所提供胍蘇州市中新工業園區“東方之門”模型動態測力風洞試驗報告》參數,以及上述《建筑結構荷載規范》(GB50009-2012)計算數據,采取最不利數據進行計算,荷載計算取值見表1:
(3)風洞實驗介紹:

由于“東方之門”建筑群體造型各異、繞流復雜多變,不同風向角下流態是不同的,其間的干擾影響而導致的風荷載的變化是難以從已有的規范中找到的,故只有在模擬的大氣邊界層流場中對模型進行試驗,利用動態測壓系統及動態測力天平實測并加以分析才能初詳其貌,為建筑結構設計及覆面材料的抗風載設計提供必要的風荷載數據。
南京航空航天大學空氣動力研究所圖紙為“東方之門”制造了幾何縮尺比為1∶ 350的輕質實體測力模型及測壓模型。并在NH-2低速風洞中(模擬大氣邊界層流場)進行了測壓試驗及動態測力試驗,以確保建筑物的安全、可靠與人居環境的舒適。
4.2結構設計原理與設計方法
4,21設計原理與方法
上一頁123456下一頁