(1)有關內力和變形的計算均采用彈性方法進行,對部分變形較大的結構,如索結構,考慮幾何非線性的影響。
(2)進行構件的設計計算時,對于靜定結構采用材料力學、彈性力學的相關假設、公式、原理及方法進行計算;對超靜定結構,一般利用ANSYS、3D3S等結構設計軟件進行計算。
(3)進行面板的設計計算時,一般是基于撓度不大于厚度條件下的彈性小變形理論,采用彈性小撓度計算公式,并考慮與大撓度分析方法計算結果的差異,將應力(詞條“應力”由行業大百科提供)與撓度計算值進行折減;對支撐條件比較特殊的面板,采用有限元方法進行計算。
(4)除按上述原理及方法進行結構設計計算外,還遵守現行相關規范的規定。
4.2.2設計荷載分析與組合
在作用于幕墻上的各種荷載中,主要有風荷載、地震作用、幕墻結構自重等。其中,風荷載、地震作用為作用在幕墻上的動荷載;結構自重和由環境溫度變化引起的作用效應為作用在幕墻上的靜荷載。在進行幕墻構件、連接件(詞條“連接件”由行業大百科提供)和預埋件承載力(詞條“承載力”由行業大百科提供)計算時,采用荷載設計值;進行位移和撓度計算時,采用荷載標準值。
(1)幕墻結構自重
按規范要求,幕墻結構自重的分項系數取yG=1習自重起主要控制作用時為135)。
(2)風荷載
按規范要求,風荷載分項系數應取1,4,即風荷載設計值為: W=y因wk=14wk
(3)地震作用
地震荷載標準值Ek,據《玻璃幕墻工程技術規范》(JGJ102-2003)Ek=Gk×α max×βE
α max地震影響系數放大值,抗震設防烈度為6度,基本地震加速度為0.05g, 取0,04
βE
動力放大系數取:50
按規范要求,地震作用的分項系數取yE=13,即地震作用設計值為: qE=yE區qEK=1,3qEK
、 雪荷載
按《建筑結構荷載規范》(GB500O9-2012)取值,雪荷載的分項系數取yG=1,4
(5)施工荷載
按《建筑結構荷載規范》(GB50009— 2012)取值。施工荷載分項系數取yL=14。
(6)荷載組合
按規范要求對作用于幕墻同一方向上的各種荷載應作最不利組合。
4.3塔樓單元式幕墻結構分析與核算
4.3.1系統描述

北塔樓標準層高為41m,幕墻橫向計算分格寬度B=1500mm,玻璃最大分格為1550mm× 2995mm,玻璃采用10+12A+8mm厚鋼化玻璃。
(1)幕墻傳力路徑分析
玻璃→結構膠(壓碼卜橫梁或立柱→立柱與支座連接系統→支座→
主體結構
(2)風荷載標準值
wk:作用在幕墻上的風荷載標準值(kN/m2)
根據風洞試驗報告及《建筑結構荷載規范》,取最不利荷載-3.85kPa進行計算。
采取ANSYS結構計算軟件進行結構分析
玻璃復核

橫梁復核
橫梁通過螺釘與立柱連接,可簡化成簡支梁(詞條“簡支梁”由行業大百科提供),玻璃面板通過三角形或梯形荷載傳遞給立柱,通過靜力計算方法,可得出橫梁的彎矩、剪力大小,查詢橫梁截面參數后可計算其強度及撓度滿足規范要求。
連接復核
(1)橫梁與立柱通過自攻釘連接,連接節點如下:
經過計算分析得出最不利螺釘承受剪力為326kN,小于選用的螺釘受力3.79kN,滿足設計要求。
(2)立柱與掛碼連接
經計算,連接螺栓承受最大剪力11kN,小于選用螺栓剪力17.39kN;立柱的局部承載力及掛件的局部承載力均滿足設計要求。
(3)掛碼與主體連接
經計算,掛碼與主體連接的角鋼各截面局部承載力均滿足設計要求。

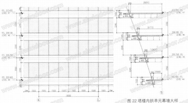
4.4塔樓拱底單元幕墻系統難點分析計算
4.4.1系統描述

本系統位于南北塔樓匯合處拱底部分橫明豎隱框單元幕墻,面板采用8+12A+8+1,52PVB+10mm中空夾膠玻璃(詞條“中空夾膠玻璃”由行業大百科提供)面板,夾膠層在外側,單元系統為窗式單元板塊,最大玻璃面板計算分格寬度1500mm,計算高度2950mm,傾角5σ ,計算標高(詞條“標高”由行業大百科提供)22585m,本系統的最大難點在于玻璃面板結構膠與鋁合金龍骨的連接,由于結構膠在永久荷載和瞬時荷載作用下的不同力學性能,按常規橫明豎隱玻璃面板的連接方式,結構膠很難滿足設計要求,故采用彈塑性結構計算原理以及選取高性能結構膠的方法分析計算,玻璃面板的永久荷載通過增加角鋁夾件來承受。
4.4.2荷載計算說明
風荷載按風洞及規范編號《建筑結構荷載規范》(GB50009-2012)取值為6,94kN/m2,自重荷載分解成與幕墻垂直及平行的兩個方向的荷載,并與風荷載進行組合,得出最不利組合設計值為10.32kN/m2,最不利組合標準值為7.37kN/m2
4.4.3玻璃面板的受力校核

4.4.4硅酮結構膠寬度設計計算

上一頁123456下一頁