4.6構造與連接
4.6.1 GRC單層板
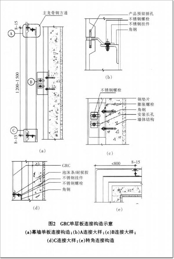
GRC單層板結構簡單,厚度一般為20~30mm。GRC單層板采用石材背栓連接方式,其連接構造如圖2所示。

GRC單層板的安裝方式有以下幾種:(1)干掛式,利用高強度螺栓和耐腐蝕、強度高的金屬掛件或利用 金屬龍骨,將飾面板(詞條“飾面板”由行業大百科提供)固定于建筑物的外表面;(2)打釘式,利用專業工具開孔,然后打入螺釘、鉚釘并將其固定于建筑物的外表面;(3)膠粘式,使用建筑專用膠將GRC粘貼于建筑物的外表面。
4.6.2 GRC帶肋板
GRC帶肋板的加強肋應沿板的四周布置,當板的幅面較大時,還應在板中部布置加強肋。加強肋為梯形空心截面,一般壁厚為10—15 mm。為便于成型,梯形斜面與模板面的夾角應為450。為減小應力集 中,在縱橫肋相交處應采用圓弧過渡。GRC帶肋板與結構的連接固定應采用下托方式(因下托固定時。GRC板受壓;而上托固定時,GRC板受拉),典型的連 接固定方式采用如圖3所示的暗榫下托方式。圖4為加強肋的連接構造。

4.6.3 GRC框架板
4.6 3 1面板
GRC面板厚度一般為15 mm,最小厚度不小于12mln:面板四周邊緣應通過加厚邊緣和彎起邊緣來加 強,其中加厚邊緣最小厚度為30mm,彎起邊緣最小高度為50mm。
4.632鋼框架
鋼框架采用壁厚不小于3 mm的矩形方管焊接制成,并與連接件(詞條“連接件”由行業大百科提供)完成全部焊接后進行整體熱鍍鋅處理。
4.6 33連接
GRC材料是由水泥、抗堿玻纖、骨料以及顏料組成的,通過噴射加工而成,之后的工序全部由人工完成,以這種方式做出來的GRC幕墻板材與玻璃、石材金屬以及PVC等幕墻板材存在諸多不同,這種不同反映在建筑的圍護結構跟建筑主體的連接方式上也存在差異。對于GRC幕墻板而言,一般情況下受到的是風荷載.垂直于板面。同時又受到了重力荷載,這兩荷載的方向相互垂直,須通過連接系統傳遞到建筑主體上。在溫度變化下,GRC幕墻板材由于板材的密實度、產品的厚薄不一,在同一塊GRC幕墻板上不同部分的變形也會不一樣,這種變形須能夠得到很好的釋放。


所以,就要保證傳遞重力荷載和風荷載的兩個接 觸點之間保留足夠的自由度。能夠允許這種變化。針對以上特征。GRC幕墻與建筑主體的連接系統既不同于玻璃幕墻的框架、支撐結構,也不同于石材的干掛 結構,而需設計一種連接系統,能夠傳遞GRC的風荷載、重力荷載,但又能夠降低連接點之間線性變化的約束。為了滿足以上情況,GRC幕墻特有的連接系統是:通過柔性的、不同形狀的錨固件連接GRC幕墻板材,錨固件連接在板框架上,通過板框架連接到建筑 主體上。GRC面板與鋼框架采用沿板左右對稱均布的L形 鋼筋連接,這是一種典型的柔性連接。其中L形鋼筋的腳部埋設在GRC面板內側表面,而其腿部上端焊接到鋼框架上,且趾部指向板的對稱軸線(圖5)。鋼筋的直徑為8mm,其有效作用長度滿足設計要求,埋設長度為100mm。用于埋設L形鋼筋腿部的粘結盤尺寸為100mmx200mm,厚度與板厚相等。為了支撐GRC面板的自重,通常應在板下部的全部或部分柔性連接點處增加斜向布置的L形重力錨固筋。重力錨固筋連接方式與L形柔性連接鋼筋的連接方式相同(圖6)。


當對幕墻有抗震要求時,則應在對GRC面板沒有過度變形約束的前提下增設抗震錨固件(圖7)。抗震錨固件由一對腳部相鄰、腿部沿斜向對稱布置的L形鋼筋 組成,其連接方式同L形鋼筋的連接方式。抗震錨固筋的埋設位置通常應位于GRC面板重心位置的水平面上。對于幅面較大或自重較大的幕墻,其抗震錨固件可改用鋼板錨固件。框架板與結構的連接是通過GRC板背面的鋼框架與結構采用暗榫下托的連接方式,其連接節點如圖8所示。

GRC幕墻與建筑主體轉角連接構造如圖9所示.
GRC幕墻曲面板與建筑主體連接構造如圖10所示。
4.7安裝細部構造
(1)排板的水平基準線標高(詞條“標高”由行業大百科提供)為3.300m(相對于±0.000)。
(2)垂直方向第一塊板與室外散水的關系如圖11 所示。
(3)外墻陽角處板的接頭方式如圖12所示。
(4)大樓西北角凹槽內側掛板取消,改為刷涂(詞條“刷涂”由行業大百科提供)料。
(5)北側扇形網架下兩根圓柱間的弧形墻面上不掛板,直接抹水泥砂漿(30mm厚)。
(6)窗口部位GRC板的處理如圖13所示。


(7)外墻陰角的處理如圖14所示
(8)墻面垂直方向的基準線以該前面的左右對稱中心線為界,將非標準板左右等分。若非標準板寬度較小,可通過調整垂直灰縫寬度的方法取消非標準板(灰縫調整原則:最小35mm,最大70mm)
5 GRC幕墻接縫設計
5.1 GRC幕墻面板之間的接縫設計
GRC墻板之間的接縫設計是整個墻體設計的組成部分,接縫寬度的選擇不應僅考慮外觀要求,還須考慮 墻板的尺寸、結構偏差、預期變形、接縫材料和與其相連接的表面。接縫太窄時,將會發生接縫密封劑的拉伸破壞或墻板本身的開裂。接縫處密封材料的填人深度取決于接縫寬度。兩 者的關系取決于密封材料的性能。通常,當接縫寬度為13-25mmH,-j",密封材料填入深度為接縫寬度的1/2;當接縫寬度超過25 mmH,寸,密封材料最大填入深度為13mm(圖15)



5.2接縫構造
板縫處理如圖16所示;板的接縫處理如圖17所示:GRC板與玻璃的接縫處理如圖18所示;構造縫處做法如圖19所示。
5.3側面邊緣
GRC墻板的側面邊緣通常是GRC板之間、GRC板與其他部件連接的部位,側面邊緣為填放密封材料而設置,側面邊緣的高度應能為填充永久性彈性密封材料提供足夠空間,側面邊緣的最小高度通常為30mm(圖15)。
6 GRC幕墻接縫密封膠
6.1應用特點
GRC幕墻接縫密封有兩個經常遇到的問題:一是

粘結問題,由于主料水泥的主要成分為硅酸鹽,屬于堿性鹽類,基材表面性質呈堿性,不利于界面粘結,同時水泥纖維板屬于多孔性材質,內部存在許多微孔,產生毛細管效應,趨向于吸附水分,并將水均勻快速分布于界面上,容易導致粘結失效,此外毛細作用也會使內部鹽堿隨水遷移至表層聚集,影響粘結;二是污染問題,微孔的存在導致表面吸附作用很強.與之接觸的密封材料中的有機物容易滲入,從而導致板面污染,嚴重影響幕墻飾面的美觀并帶來外墻維護的困難。根據纖維水泥板的特性及其在幕墻接縫應用上的特點,其密封材料的性能應滿足以下要求:
(1)良好的粘結性是防止滲漏的關鍵因素,是保證密封性的先決條件:
(2)對纖維水泥板應無污染,裝飾效果好;
(3)耐老化、耐紫外線、耐臭氧、耐水,不會因風雪雨水的侵襲而發生變化;
(4)具有良好的可擠出性和觸變性,使用方便;
(5)硅酮密封膠對于玻璃或金屬如鋁材等建材具有良好的粘結相容性;
(6)纖維水泥板濕熱系數比石材、玻璃大,幕墻接縫伸縮及剪切變形比石材、玻璃大,幕墻用硅酮耐候密封膠應滿足相應的位移能力要求,能承受板塊在低溫收縮、高溫膨脹的變化下對接縫冷拉熱壓以及荷載造成的纖維水泥板塊的位移,起到有效的密封作用。接縫既要設計得當,又要選擇位移能力較強的密封膠。位移能力弱的密封膠無法滿足GRC接縫的變位。一段時間以后就會發生開裂、漏水等問題。因此纖維水泥板幕墻接縫密封應用中,應充分考慮到面板的特殊性,選擇位移能力較高、與纖維水泥板粘結性良\好而又不對其產生污染的專用密封膠,以保證工程質量。由于纖維水泥板本身的材料特性及其應用的特點,現有的普通硅酮密封膠并不能滿足纖維水泥板幕墻的應用需求,建議采用纖維水泥板專用硅酮耐候密封膠SS602F。
GRC幕墻板間縫隙處理不得使用水泥砂漿嵌縫(詞條“嵌縫”由行業大百科提供)。使用水泥砂漿嵌縫Ij,-J'GRC構件拼接處開裂是通病:
GRC構件的拼接縫在施工完成3—5年時間內會繼續產 生;實測數據表明,GRC安裝完成3年內有96%拼縫會開裂。
6.2接縫密封膠接縫位移設計計算
(1)在熱位移及其他影響因素的作用下,密封膠接縫會經歷4種基本的位移(圖20),即:壓縮C、延伸D、縱向延伸既和橫向延伸晶。縱向和橫向延伸對密封膠接縫產生剪切影響(圖21)。

(2)密封膠接縫通常要同時適應以上所述位移中的幾種位移,包括延伸和壓縮,或者延伸和壓縮與縱向延伸或橫向延伸的組合位移。或者延伸和壓縮之一與縱向延伸或橫向延伸的組合位移。密封膠接縫設計要同時考慮這些位移的影響。滿足預期的組合位移。進行密封膠接縫設計時應充分評估接縫可能遇到的各種位移類型,并據此進行設計。
7 GRC高層單元幕墻示例
某工程樓高92.7 m,層高3.60 m;主體結構為鋼結構;建筑設計使用年限(詞條“設計使用年限”由行業大百科提供)為50年;建筑類型為一類;建筑耐火等級為一級;設計風荷載為基本風壓0.6 kN/m2;地區粗糙度為C類。非透光部分為GRC幕墻;透光部分為明框中空玻璃幕墻(6+12A+6);工程采用GRC大面板單元式掛接方式安裝。單元板最大尺寸為2300minx3 580mm(寬×高);最大單元板重量為175kg;G壁厚根據結構設計計算確定。尺寸允許偏差:長度允許偏差為5 rain;壁厚允許偏差為2mm。
GRC構件本身內部加固用的鐵件采用自身預埋中8鋼筋,配帶50mmx30mmx3Bin鍍鋅方鋼,加固的鋼架采用鍍鋅角鋼(詞條“鍍鋅角鋼”由行業大百科提供)、鍍鋅方管。GRC構件之間、GFRC構件與結構墻體之間的縫隙填補需采用具有抗裂、防水功能的材料。體積密度不小于2.01 g/cm,;抗壓強度不小于60.5 MPa。抗彎極限強度:平均值不小于24.4 MPa;單塊最小值不小于23.5 MPa。抗拉強度不小于7.1MPa;抗沖擊強度不小于14.8 l(J/m;吸水率不大于10.0%;抗凍性:經25次凍融循環,無起層、剝落等破壞現象。
GRC幕墻板制造工藝:制作RGC幕墻板面層_÷噴漿法制作GRC幕墻板結構層一拆模_+拋光.+拋光的GRC幕墻板施加防水涂料_進行防水試驗.+GRC幕墻板表面酸洗處理(表面酸洗與拋光相結合)_吊裝 (圖22)。

8結束語
目前國內GRC幕墻僅有產品標準,而缺少GRC幕墻設計標(詞條“設計標”由行業大百科提供)準$口GRC幕墻安裝規范。近年來,通過行業內的有關專家和企業的努力,推動了GRC幕墻的發展,出臺了系列國家標準和行業標準,這些對于規范GRC幕墻市場起到了積極而重要的作用,推進了GRC幕墻行業發展,也使GRC幕墻行業發展有了一個良好的基礎。
盡管如此。仍存在一些問題亟需解決:一方面在GRC幕墻工程項目的實施過程中,GRC幕墻的材料制造、設計、安裝以及驗收的各個階段,由于我國沒有相應的工程規范標準.在合同協議的達成以及合同協議過程中若存在某些疏忽,后期都要耗費大量人力、財力去對各個階段進行協商論證,大型GRC幕墻項目要請有關專家論證:另一方面是GRC幕墻市場的體系不夠完善,降低了市場的準入要求,未達至IJGRC幕墻要求的企業為了謀求利潤,粗制濫造,最終促使GRC幕墻市場陷入無序競爭的狀態.同時留下了安全隱患。
當前不少建筑設計師不知道依據什么樣的技術參數去設計GRC幕墻;不少施工單位也不知道如何安裝GRC幕墻;國內GRC幕墻應用的經驗不多,各地大大/J,lJ,的GRC廠家不計其數,然而能真正深入了解GRC的廠家不多。有些廠家在利益驅使下,背離了GRC的品質,生產出質量低劣的產品,不但沒能起到裝飾的作用,反而破壞了建筑形象。為了保證GRC幕墻屋面工程質量,對GRC幕墻在設計、選材、模具、生產、安裝、施工圖、材料及施工企業選擇、管理、維護等方面進行技術論證是必要的。
GRC是近30年來新開發的一種新型復合材料,是運用高新技術對材料進行復合利用的又一重要成果。GRC的諸多優點獲得了各國材料界的公認,取得了明顯的技術經濟效果。我國建筑行業應盡快推廣GRC幕墻屋面。
上一頁12下一頁