固定片與混凝土墻體、混凝土塊連接固定時,可采用金屬膨脹螺栓、塑料膨脹螺釘、特種鋼釘(水泥釘)、射釘等連接方式。固定片與砌體洞口連接固定,應采用塑料膨脹螺釘或特種鋼釘(水泥釘)等方式,不可采用射釘固定,且不得打在磚縫內。如墻體為砌體材料,建議在合理位置布置混凝土塊,并將固定片采用射釘等方式固定在混凝土塊上。
3、固定玻璃、門窗扇及五金配件安裝
門窗安裝完成,總包完成外墻裝飾等工程后,可開始安裝固定玻璃、門窗扇及相應五金配件,安裝過程中應注意以下幾點:
a) 固定玻璃、門窗扇安裝時應將門窗框內垃圾清理干凈。
b) 進行固定玻璃安裝,固定玻璃安裝時如壓線朝外,應在壓線上打密封膠后壓入固定。固定玻璃安裝方式可參照平開門窗玻璃安裝方式。
c) 門窗扇的安裝,門窗扇根據合同約定,選用合頁(詞條“合頁”由行業大百科提供)或滑撐固定,需要注意的是在用螺釘固定時一定要先在螺釘上打膠再固定,避免水從螺釘孔中滲入。
d)五金配件的安裝應正確無誤,保證能正常開啟,同時保證水密性氣密性。
e)參照附錄打膠說明,應要求門窗安裝單位在相應位置打膠,避免出現滲漏。
4、成品保護
鋁合金門窗在安裝過程中需要時刻注意成品保護,成品保護在現場主要有以下幾種方式
a) 型材、五金表面貼保護膜
b) 玻璃內外表面貼保護膜(內粉刷應后統一撕除清理,如有必要可換貼新保護膜)
e)門窗框下檻位置放木制 U型保護殼。
5、驗收
合金門窗安裝完成后,應按照合同及規范要求進行驗收,包括門窗三性性能報告的提供、熱工性能檢測報告的提供等。最重要的是進行 12小時淋水試驗,檢查滲漏點。
二、安裝控制要點
在鋁合金門窗在上述安裝過程中有如下一些重要的控制要點,現場工程師應著重注意下述位置的安裝質量。



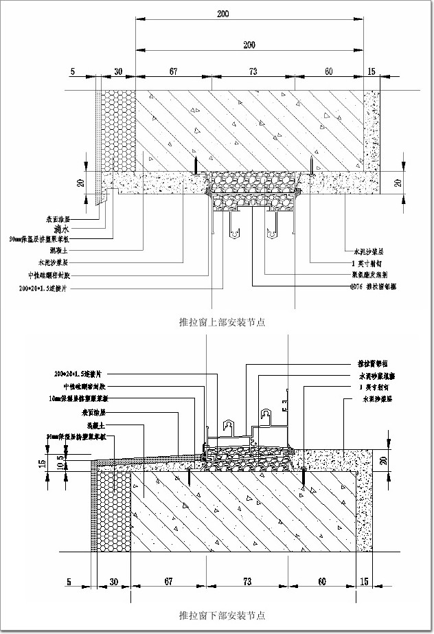
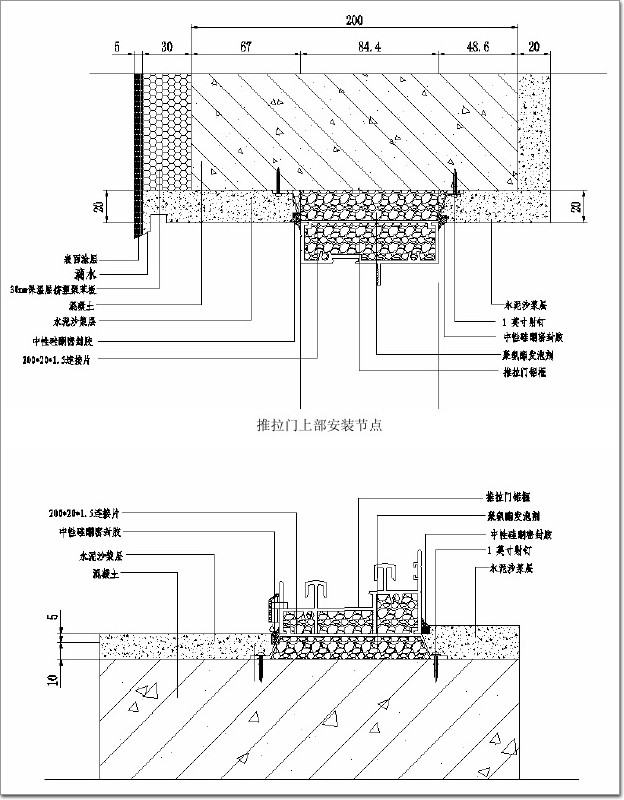
三、標準安裝節點
針對不同建筑外立面(詞條“建筑外立面”由行業大百科提供)及外墻保溫形式,以下有幾種標準節點做法,項目部可參考。
外保溫安裝節點




第四部分性能檢測
鋁合金門窗除了在加工、安裝過程中要滿足加工、安裝的規范要求外,還需要滿足各項性能要求,主要有以下兩大部分。
上一頁123456789下一頁