本篇文章內容由[中國幕墻網ALwindoor.com]編輯部整理發布:
國內首個公共建筑的裝配式裝修樣板在中國建筑設計院的創展中心成功推出。這套樣板是中國院與北京和能人居科技有限公司共同研發,開創了一條裝配式裝修技術應用于公共建筑的新思路。樣板展示的裝配式裝修技術,貫徹結構與內裝管線分離的理念,全面采用干式工法施工,實現了裝配化裝修,達到了質量好、施工快、無污染的效果。
樣板包括1間小辦公室和半間會議室
以某實際工程為原型
按照真實尺寸進行搭建

展廳內景

展廳平面

會議室

小辦公室
裝配式裝修技術
創展中心公建樣板間結合和能人居科技的裝配式裝修八大系統,針對公共建筑的特點進行升級,主要包括集成地面系統、集成墻面系統、集成吊項系統、集成設備(詞條“設備”由行業大百科提供)和管線系統和生態門窗系統。
1. 集成地面系統

集成地面系統構造
架空構造——架空地面高度100,與常規地面高度相同。架空層下可以敷設管線。
干式工法——取消墊層,無抹灰。
面層材料——面層材料可自由選擇采用地毯、木地板、PVC地面等。
現場快裝——地板可以快速拼裝,方便拆卸,利于維修。
2.集成墻面系統
<

集成墻面系統構造
隔墻采用輕鋼龍骨,填充巖棉,表面是一體化帶飾面的涂裝板,省了表面貼壁紙或刷涂料(詞條“涂料”由行業大百科提供)的工序,既省工又環保。
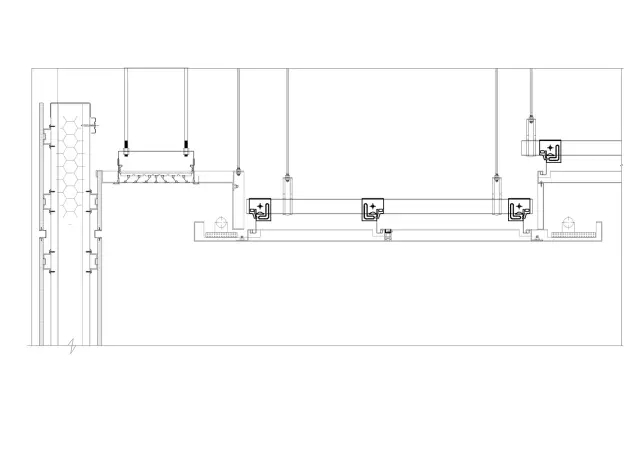
3.集成吊頂系統

集成吊頂(詞條“吊頂”由行業大百科提供)系統剖面圖
集成化的吊頂安裝方式,適用于多種室內頂面安裝材料(高精石膏板、礦棉板、鋁板、PVC、軟膜天花(詞條“軟膜天花”由行業大百科提供)等),實現了真正的頂面材料與設備系統的集成設計。
優勢:免除涂刷工序,實現快速安裝,方便后期維修。
4.生態門窗系統

生態門窗系統示意
門窗在工廠完成。門扇與鉸鏈鎖孔門鎖的集成制造,門套與合頁的集成制造。現場安裝使用螺絲刀擰好即可。1個螺絲刀,14個螺絲釘,完成門的安裝。
5.集成設備和管線系統

集成設備和管線系統示意
管線走在地面架空層、吊頂和輕質隔墻內,可實現快速安裝和易拆更換。在辦公室內做了與快裝板材(詞條“板材”由行業大百科提供)配套的集成面板(詞條“面板”由行業大百科提供)模塊,可以方便電氣管線的更換、增加和維修。
裝配式內裝材料
樣板間中,除部分木質吸音板外,所有材料均為A級不燃材料。具體見下圖。

墻面1——定制型裝配板,易清潔,耐擦洗

墻面2——會議室成品吸音板

地面1——辦公室卷材地板

地面2——公議室地毯

吊頂1——辦公室礦棉板

吊頂2——會議室鋁扣板

架空地板——鍍鋅鋼板,面層為硅酸鈣板

隔墻——鋼龍骨和鋁合金龍骨,填巖棉板(詞條“巖棉板”由行業大百科提供)
施工工藝
1.龍骨搭建

龍骨施工現場
2.地板鋪設

地板施工現場
3.吊頂安裝



吊頂施工現場
4.門窗安裝


門施工現場
構造設計細節
█ 典雅大氣通高門——3米高與室內凈高相同

█ 易維裝飾一體板——省時省料無污染

█ 精致的收邊和接縫處理——手工作業難以實現的精度

█ 模塊化集成面板——為線路擴容預留空間

█ 隱蔽式設備帶——將燈具、散流器、回風口等設備集成起來,進行隱蔽化設計,提高空間的整潔程度

█ 調和色的面板——與會議室的顏色氛圍協調

█ 貼心美觀的掛鏡線——在2.4米高度設掛鏡線,美觀實用,減少了切板,節約了材料

█ 精細的窗套

█ 易潔踢腳——與墻面齊平美觀

施工周期
由于采用了現場組裝的方式,樣板間的搭建過程十分順利,由4個工人,只用了15天就搭建完成。

研發背景
裝配式建筑是采用預制部品部件在現場裝配而成的成品建筑,由結構系統、外圍護系統、內裝系統和設備管線系統組成。按照相關政策和標準的要求,裝配式建筑應采用全裝修。
一般的裝修方式是在現場對原材料進行加工,進行施工的裝修方式,存在大量的現場加工、大量的濕作業,施工質量完全依賴工人手藝,工期一般都很長。裝配式裝修是一種全新的裝修方式,沒有濕作業,采用干式工法,部品部件在工廠預先制作完成,由產業工人在現場進行組裝,質量好,安裝速度快,無污染。
北京市保障房中心建設的多個公租房項目,都采用了裝配式裝修技術。郭公莊一期公租房項目,中國院與和能人居科技合作,采用了裝配式裝修2.0技術,已經完成了1452套公租房的裝配式裝修。

郭公莊一期公租房項目
繼成功地在住宅領域應用之后,中國院與和能人居科技一起,研究裝配式裝修技術在公共建筑領域的應用方案,嘗試解決公建裝修耗時長、成本高、難維護、易污染的難題。中國院的裝配建筑院、環藝院室內所、和能人居科技三個團隊緊密合作,從設計、技術、材料、管理等多方面進行深入研究,歷時三個月,對關鍵技術和產品反復嘗試和試驗,終于成功推出代表國內領先水平的公共建筑裝配式裝修的樣板。